Дом, 200м2, 2 эт, 5.2 сот.
Площадь — 200 м2 общая
Площадь участка — 5.2 сот.
Этаж — 2
Ремонт — Требует ремонта
Отопление — Есть
Холодное водоснабжение — Есть
Канализация — Есть
Электроснабжение — Есть
Газоснабжение — Есть
Описание
ВЫГОДНОЕ ПРЕДЛОЖЕНИЕ - ДОМ В КП "ПЕРВЫЙ ПИОНЕРСКИЙ"
Коттедж общей площадью 188 кв. м расположен на участке правильной формы 5.3 сотки.
Дом выполнен из качественных строительных материалов. Застройка поселка ведется современными домами в минималистичном стиле, с эргономичными и функциональными планировками.
Жилые помещения просторные и светлые. Окна от пола до потолка наполняют внутренние пространства светом, и обеспечивают связь между интерьером и природой.
Отделка фасада выглядит очень эффектно благодаря контрасту оштукатуренного светлого первого уровня и обшитого фасадной плиткой под дерево второго этажа дома.
В проектах предусмотрена открытая терраса, выходящая во двор. При желании можно установить маркизу, открытый сезонный или круглогодичный навес.
Дома на монолитном фундаменте из керамических блоков Kerakam, Parotherm зимой сохраняет тепло, а летом прохладу.
Стены выложены из керамических блоков шириной 300440 мм. Перекрытия выполнены из сборных ж/б плит.
Декоративные элементы фасада представляют фактурную штукатурку по утеплителю. Цоколь облицован керамогранитом.
Большие двухкамерные панорамные окна изготовлены из профиля Rehau.
Все дома имеют плоскую утепленную кровлю, покрытие Технониколь с греющим кабелем.
Отопление осуществляется компактным газовым котлом Вuderus, Bosch.
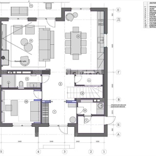
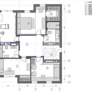
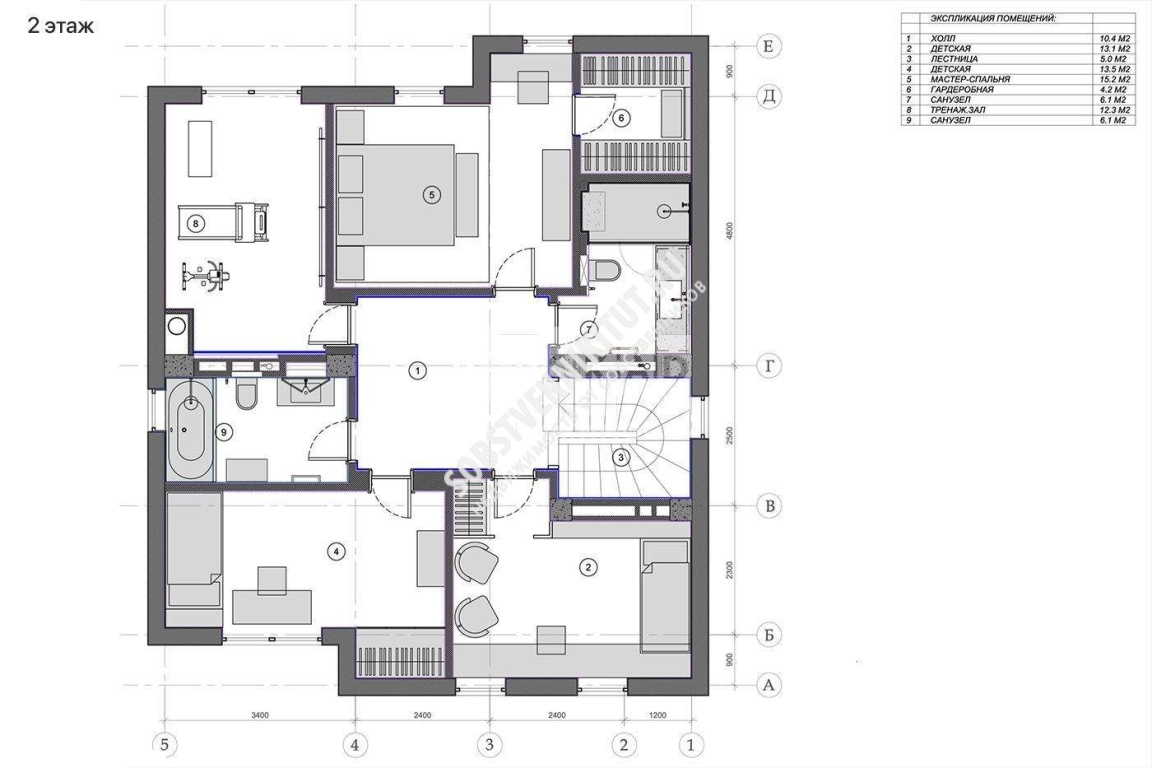
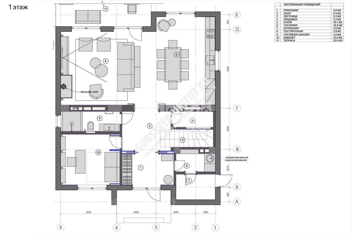
Планировка
1 этаж: прихожая, гостевая спальня, санузел, гостиная-кухня, гордеробная, постирочная, котельная;
2 этаж: мастер-спальня со своей гардеробной, 2 спальни, 2 санузла, спортивный зал либо кабинет.
Жилой комплекс бизнес-класса находится в 43 км от МКАД на границе города Истра. Идеально для того, чтобы не ощущать суету и пыльный воздух мегаполиса, но при этом иметь возможность быстро добраться до центра.
Престижное Новорижское направление - частные школы, конные клубы, ледовые и футбольные площадки, гипермаркеты. Город Истра - это школы, детские сады, медицина, кинотеатр, отделения банков, фитнес-центры и прочая городская инфраструктура. Проезд по Новорижскому, Волоколамскому, Пятницкому или Ленинградскому шоссе. Рядом железнодорожная станция. В 15 минутах от ЖК расположено живописнейшее место отдыха - Истринское водохранилище.
Инфраструктура поселка:
- Благоустроенный водоем и парковая зона
- Workout-площадка для уличных тренировок
- Зеленая аллея вдоль всего поселка
- Магазин и кафе
- Детские и спортивные площадки
- Стритбол, мини-футбол, беговые дорожки
- Огороженная территория с КПП, видеонаблюдение 24х7 [#7857235#]



















